Ansicht Angebot Wohnungsangebot Schilfbreite 31

Wohnungsangebot Schilfbreite 31

638,58 €

Warmmiete pro Monat

67,79 m² 3 Zimmer

Objektbeschreibung

Top-Wohnlage! Unsere 50er-Jahre-Bauten in der Schilfbreite wurden aufwendig saniert. Vorteilhaft geplante Raumzuschnitte ermöglichen ein individuelles Wohnen in ruhiger Lage mit viel Grün. Die Außenanlagen sind mit Liebe zum Detail angelegt und sehr gepflegt. Kurze Wege zu Geschäften und die gute Verkehrsanbindung machen das Leben hier angenehm.

Schilfbreite 31, 39120 Magdeburg

Objektfakten

Zimmer:
3
Wohnfläche:
67,79 m²
Erbaut in:
1953
Zustand:
modernisiert
Etage:
3
Etagenanzahl:
3
Immobilie ist verfügbar ab:
01.04.2026
Angebot-ID:
220-0-0306

Kostenüberblick

Kaltmiete:
440,64 €
Warmmiete:
638,58 €
monatl. Betriebs-/Nebenkosten:
197,95 €
Heizkosten in Warmmiete enthalten:
ja
Genossenschaftsanteile:
1.280,00 €

Energieausweis

Energieausweis-Art:
Verbrauch
Energieverbrauchskennwert:
67,70 kWh/(m²*a)
Warmwasser im Energieverbrauch:
ja
Energieeffizienzklasse:
B
Energieausweis-Ausstellungsdatum:
20.08.2025
Energieausweis-Jahrgang:
2014

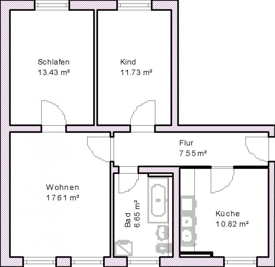
Grundriss

Grundriss
Ansicht Angebot Wohnungsangebot Schilfbreite 31
Ansicht Angebot Wohnungsangebot Schilfbreite 31
Ansicht Angebot Wohnungsangebot Schilfbreite 31
Ansicht Angebot Wohnungsangebot Schilfbreite 31
Ansicht Angebot Wohnungsangebot Schilfbreite 31
Ansicht Angebot Wohnungsangebot Schilfbreite 31
Ansicht Angebot Wohnungsangebot Schilfbreite 31

Ihr Ansprechpartner

Ada Schönfeld

vermietung@wbg1954.de

(0391) 62 92 711

Fragen zu dieser Wohnung?

Leipziger Straße • Schilfbreite 31 • 3 Zimmer • 67,79 m² • 638,58 € Warmmiete