Ansicht Angebot Wohnungsangebot Peterstraße 16

Wohnungsangebot Peterstraße 16

358,67 €

Warmmiete pro Monat

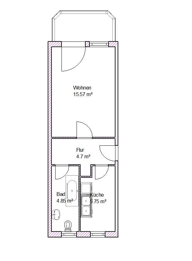
31,00 m² 1 Zimmer Balkon

Objektbeschreibung

Top-Wohnlage in Stadtmitte zwischen dem Breiten Weg und der Elbe. Helle und freundliche Wohnungen in anspruchsvoll sanierten Häusern ermöglichen ein individuelles Wohnen. Einkaufscentren der Stadt sind ebenso wie die bedeutensten Kultureinrichtungen bequem zu Fuß erreichbar. Die Elbe mit ihrer herrlichen Uferpromenade befindet sich in unmittelbarer Nähe. Gepflegte Außenanlagen sind eine Selbstverständlichkeit.

Peterstraße 16, 39104 Magdeburg

Objektfakten

Zimmer:
1
Wohnfläche:
31,00 m²
Balkon:
1
Erbaut in:
1961
Zustand:
modernisiert
Etage:
3
Etagenanzahl:
5
Freier Stellplatz:
Anmietung nach Verfügbarkeit möglich
Immobilie ist verfügbar ab:
01.07.2026
Angebot-ID:
401-0-0305

Kostenüberblick

Kaltmiete:
279,00 €
Warmmiete:
358,67 €
monatl. Betriebs-/Nebenkosten:
79,67 €
Heizkosten in Warmmiete enthalten:
ja
Genossenschaftsanteile:
800,00 €

Energieausweis

Energieausweis-Art:
Verbrauch
Energieverbrauchskennwert:
77,10 kWh/(m²*a)
Warmwasser im Energieverbrauch:
ja
Energieeffizienzklasse:
C
Energieausweis-Ausstellungsdatum:
19.08.2025
Energieausweis-Jahrgang:
2014

Grundriss

Grundriss
Ansicht Angebot Wohnungsangebot Peterstraße 16
Ansicht Angebot Wohnungsangebot Peterstraße 16

Ihr Ansprechpartner

Ada Schönfeld

vermietung@wbg1954.de

(0391) 62 92 711

Fragen zu dieser Wohnung?

Stadtmitte • Peterstraße 16 • 1 Zimmer • 31,00 m² • 358,67 € Warmmiete